ArCADia-PLYNOVÉ INŠTALÁCIE je priemyselne špecifický modul systému ArCADia BIM postavený na technológii BIM (Building Information Modeling). Program možno použiť na vytvorenie projektovej dokumentácie vnútorných rozvodov plynových inštalácií.
Modul vykonáva výpočty potrebné na posúdenie riadneho návrhu systému (overenie správnych priemerov, rozsahu poklesu tlaku plynových spotrebičov proti prúdu) a vytvorenie odbornej technickej správy.

MODULY ArCADia BIM pre profesie TZB
ArCADia-VONKAJŠIE PLYNOVÉ INŠTALÁCIE je priemyselne špecifický modul systému ArCADia BIM postavený na technológii BIM (Building Information Modeling). Program možno použiť na vytvorenie projektovej dokumentácie plynových rozvodov, vrátane vonkajších plynových inštalácií.
ArCADia-INŠTALÁCIE VYKUROVANIA je priemyselne špecifický modul systému ArCADia BIM postavený na technológii BIM (Building Information Modeling). Program umožňuje vytvárať odbornú technickú dokumentáciu vnútorných vykurovacích sústav a zariadení v budovách pomocou technológie BIM. Tiež automaticky generuje axonometrické pohľady, výpisy a výpočty potrebné na vypracovanie projektovej dokumentácie. Umožňuje vkladanie konštrukčných prvkov výkresu na stavebné základy so súčasným vytváraním výpočtových schém a generovaním axonometrických pohľadov. Je určený pre projektantov vnútorných sanitárnych zariadení.
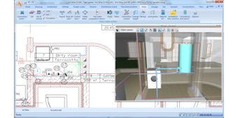
ArCADia-INŠTALÁCIE VODOVODOV je priemyselne špecifický modul systému ArCADia BIM postavený na technológii BIM (Building Information Modeling). Program možno využiť na vytvorenie odbornej technickej dokumentácie vnútorných systémov zásobovania vodou v budove. Program je určený pre konštruktérov vnútorných kanalizačných systémov.
ArCADia-KANALIZÁCIA je priemyselne špecifický modul systému ArCADia BIM postavený na technológii BIM (Building Information Modeling). Program možno použiť na vytvorenie profesionálnej konštrukčnej dokumentácie drenážnych systémov na architektonických výkresoch. Program je určený pre konštruktérov vnútorných odvodňovacích systémov.
ArCADia-Kanalizačné siete je priemyselne špecifický modul systému ArCADia BIM postavený na technológii BIM (Building Information Modeling). Aplikácia je určená pre komplexný návrh konvenčných gravitačných a prečerpávacích kanalizačných systémov v CAD aplikáciách.
ArCADia-VZDUCHOTECHNIKA je priemyselne špecifický modul systému ArCADia BIM postavený na technológii BIM (Building Information Modeling). Tento modul je určený pre projektantov vzduchotechnických inštalácií v CAD aplikáciách.